Altadena Passive House

Altadena, CA

Designed in 2025

A MIST Architects project

2025 California Rebuilds Competition 2nd Place Award

After tragic wildfires destroyed much of Altadena and Pacific Palisades in 2025, the Passive House Network sent out a call for designs that offered a more resilient, sustainable future. The competition submissions had to embody a Los Angeles architectural style, fit on a typical lot and meet code regulation, and achieve the Passive House Classic standard. MIST Architect’s entry unites Altadena's beloved and historic Craftsman character with modern and ambitious high-performance building assemblies for a brighter tomorrow that honors the past.

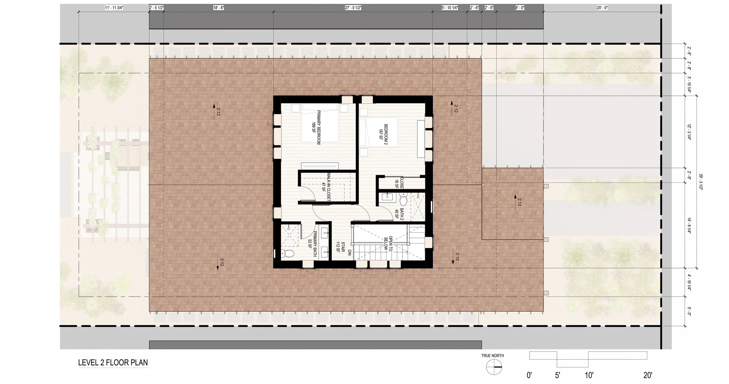
Planned to sit along East Altadena Drive in Altadena, CA, this Passive House design certified project offers an attractive and efficient home that brings forward-thinking comfort, flair, and efficiency to a storied neighborhood style. A fire-resistive, air-tight enclosure is achieved using standard and affordable 2x framing techniques, while details like an unvented roof and Class A fire-rated exterior materials prioritize wildfire resilience. The home’s simple form, attention to site orientation, carefully planned openings, and strategic shading set the occupants up for interior enjoyment and energy success. Efficient plumbing stacks, effectively sized rooms, and balanced HRV ventilation and indoor air filtration guarantee that the home can suit a wide variety of users in all conditions. While the exterior blends seamlessly with the local Craftsman vernacular, the interior offers a colorful, modern take for the contemporary lifestyle. An open living, dining, and kitchen area offers ample flexibility for entertaining and expands to a pergola-covered deck and spacious backyard of drought-tolerant, native plants to enjoy the comforts of outdoor Los Angeles living.

MIST Architect’s Altadena Passive House unifies the historic Craftsman character of Altadena with the fire resistance, energy performance, and comfort needed for a more sustainable future.

What the California Rebuilds Competition jurors had to say about the 2nd Place Winner MIST Architect’s Altadena Passive House:

"Very handsome exterior.”

“Feels very California.”